مخطط اديم الهدا السكني

مخطـط أديــــــم الهــــدا السكنــــــي

تحت مظلة الهيئة العامة للعقار

البيع والتأجير على الخارطة

تحت مظلة الهيئة العامة للعقار

البيع والتأجير على الخارطة

أديــــــــم الهـــــــــدا..

عش بين أحضـــان الطبيعــــة

توفر الهدا بطبيعتها الخلابة ملاذًا متجددًا للباحثين عن الهدوء والجمال الطبيعي، فهي في صدد مرحلة تطوير عمراني جذري لتعزيز قطاعها السياحي وتقديم تجارب مبتكرة لجذب الزوار من جميع أنحاء العالم.
وعلى بعد حوالي ٢٠ كم عن الطائف تقع منطقة الهدا بجبالها الشامخة، وإطلالاتها الرائعة على سهول إقليم تهامة، وهي تتميز بمناخ معتدل على مدار العام، ويسهل الوصول إلى منطقة الهدا من خلال شبكة طرق نموذجية تربط جميع الأحياء والمعالم السياحية المتنوعة في الطائف بسلاسة.

عن أديــــم الهــــدا

تقوم شركة تشييد للتطوير العمراني بتطوير البنية التحتية لمشروع أديم الهدا في قلب منطقة الهدا، ليمتد هذا المشروع على مساحة تفوق ال 45 ألف متر مربع بهدف تعزيز جودة الحياة والعمل على أنسنة المنطقة، لمواكبة التطورات العمرانية والخطط المستقبلية للسياحة في مدينة الطائف.
يتميز أديم الهدا بخدماته المتقدمة من مرافق وحدائق ومسارات للمشاة. ويتمركز في موقع استراتيجي مميز في مدينة الهدا الساحرة، التي لطالما عُرفت بجمال مناخها، ووفرة طبيعتها الغنية بالموارد الغذائية القيمة.

هنا.. سنُعيد إحياء المنطقة كما لو أنها لم تُكتشف بعد!

84

قطعة سكنية

284M&sup2

متوسط مساحة الأرض

45k M&sup2

إجمالي مساحة المخطط

الموقع

ام المعن، منطقة الهدا مدينة الطائف

30/04/2025

تاريخ التسليم

84

قطعة سكنية

284M&sup2

متوسط مساحة الأرض

45k M&sup2

إجمالي مساحة المخطط

الموقع

ام المعن، منطقة الهدا مدينة الطائف

خريطـــــة الموقــــــع

موقـــــع عــــامر بالحيـــــاة

نحرص في أديم الهدا على خلق كل سبل الراحة والسهولة للسكّان، والتي تمنحهم تجربة إقامة ميسّرة في قلب مدينة الطائف. حيث نقدم مجموعة متنوعة من خدمات البنية التحتية والمرافق المحيطة بالموقع، مما يتيح للسكّان الوصول إلى أهم الوجهات السياحية والمجتمعية في غضون دقائق معدودة.

4 دقائق

مصنع الكمال للورد الطائفي

5 دقائق

مزرعة الفراولة

5 دقائق

فندق بهادر الهدا

5 دقائق

فندق ميرديان الهدا

8 دقائق

مستشفى القوات المسلحة

15 دقيقة

حديقة الملك فهد

20 دقيقة

قصر ومتحف شبرا التاريخي

20 دقيقة

منطقة البلد وبرحة القزاز

35 دقيقة

جامعة الطائف

35 دقيقة

مطار الطائف-الحوية

40 دقيقة

منطقة الشفا السياحية

50 دقيقة

سوق عكاظ

أديــــم الهــــدا..

حين تلتقــي الجودة بالطبيعـــة

جودة الحيــــاة الطبيعية

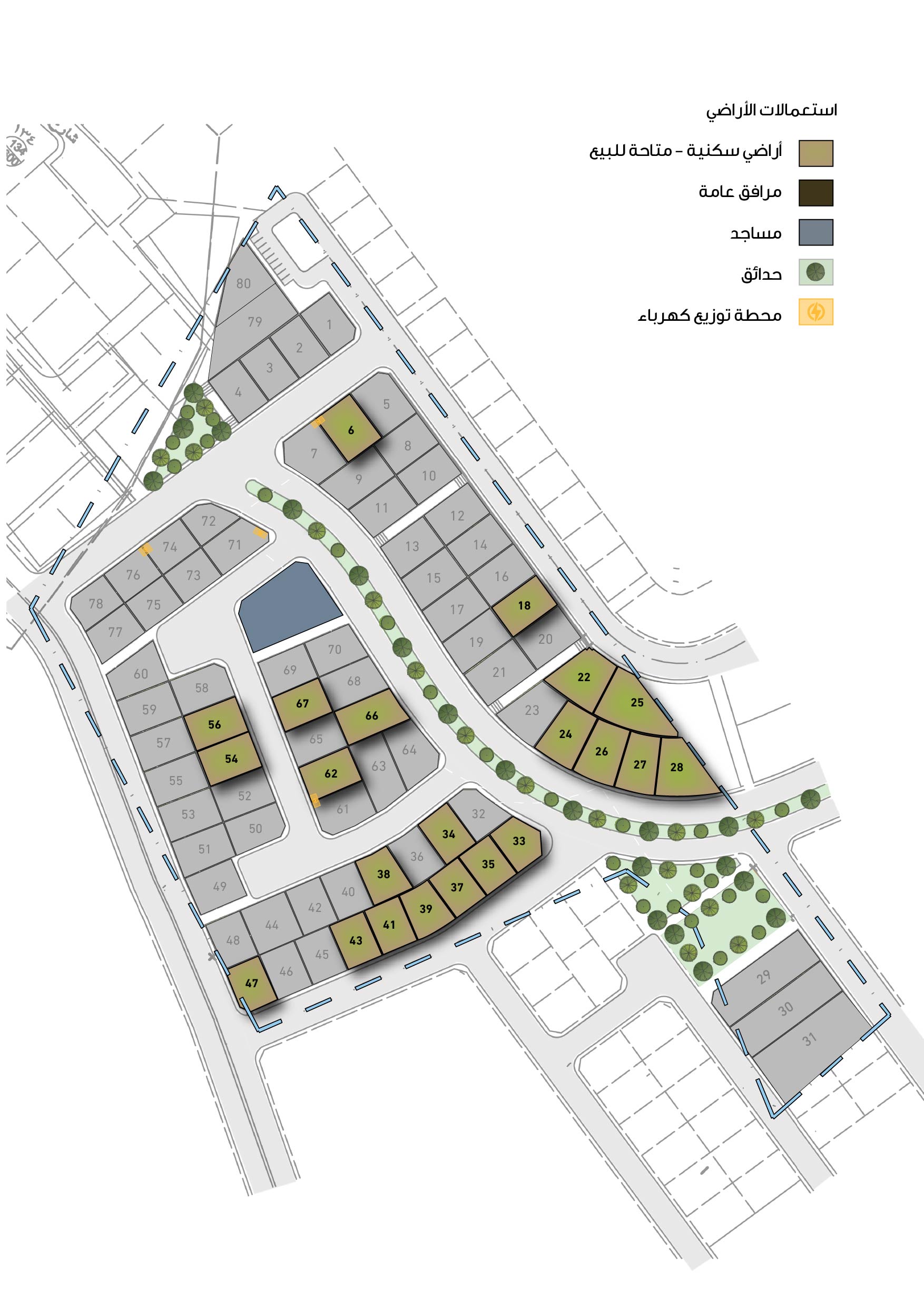
المخطط العام للمشروع

تملّك في مخطط أديم الهدا واستمتع بتجربة استثمار مثالية لمساحات من الأراضي المحاطة بخدمات متكاملة، مصمّمة لإثراء تجارب السكان. ويشمل المخطط بنية تحتية متينة، وتصميم مدروس يهدف إلى تعزيز جودة الحياة وخلق مجتمع مزدهر يعزز الانتماء والرفاهية، بالإضافة إلى مجموعة متنوعة من المرافق.

بنية تحتية متكاملة الخدمات

إنارة

أرصفة وممرات مشاه

شبكة كهرباء

طرق معبدة

شبكة مياه

البنية التحتية لشبكة الهاتف والفايبر

حدائق ومرافق عامة

إنارة

أرصفة وممرات مشاه

شبكة كهرباء

طرق معبدة

شبكة مياه

البنية التحتية لشبكة الهاتف والفايبر

حدائق ومرافق عامة

أديــــم الهــــدا..

حيــــاة تليـــــق بتطلعاتـــــك

أديــــم الهــــدا..

حيــــاة تليـــــق بتطلعاتـــــك

لتسجيل رغبتك، الرجاء تعبئة النموذج التالي

    للمزيد من التفا صيل يمكنكم زيارة الروابط التالية

    المطور

    المسوق

    للمبيعات 0532200043

    adeemalhada adeemalhada.com@

    رقم الترخيص

    Scroll to Top